
Rainwater Harvesting System in India
"A Water Conservation & Management Company"
InRain® Construction Pvt Ltd.

ISO 9001 : 2015
CERTIFIED COMPANY

Solution Provider
THE BEST INDUSTRIAL

INRAIN® CONSTRUCTION PVT. LTD.

ISO 14001 : 2015
CERTIFIED COMPANY
At





InRain® Construction Pvt Ltd.
A
The utilization of the Rainwater Harvesting System in Warangal is a sustainable and renewable energy source which is also known as green energy. It is a natural source of water which is clean and pure. We need to save water for future use. We provide the best quality products at a reasonable price for



Time saving - The filtration process is not interrupted during the cleaning cycle, eliminating the need to shut down the irrigation system; Low water and energy consumption; Sturdy and durable; Easy installation and low maintenance; Compact design and small footprint.
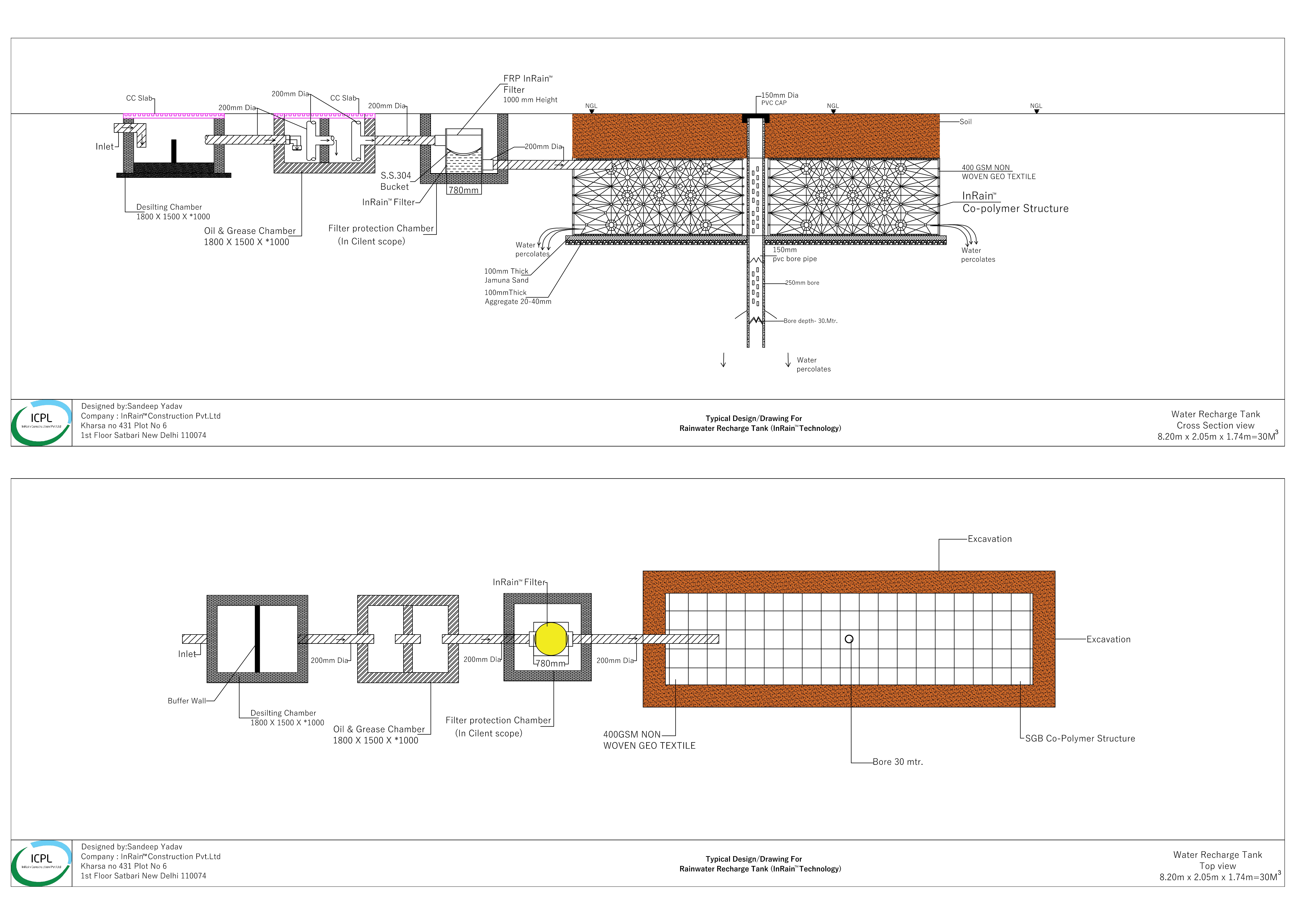
A module permeation storm water tank intended for filtration, transitory maintenance and ensuing release. It is utilized in waste channel application. It is developed utilizing our restrictive plastic infusion shaped boards.We provide all range of modules as per the requirements.


The channel is utilized to expel suspended contamination from water gathered over rooftop. A channel unit is a chamber loaded up with sifting media to expel garbage and soil from water. InRain Constructions provide wide range of filtration units required for domestic water harvesting.
InRain Constructions Ethylene Propylene Diene Monomer (EPDM) Liner has been figured to be perfect with amphibian life. It is suggested that clients test EPDM Liner before use to guarantee it is good with the particular oceanic species for the proposed application


Geotextile is essentially a porous texture which, when utilized in relationship with soil, can isolate, channel, strengthen, secure,or channel. Ordinarily produced using polypropylene or polyester, geotextile textures come in three fundamental structures: woven, needle punched or heat reinforced.



Our Happy Clients

TATA

PEPSICO

HONDA

SMART CITY KARIMNAGAR

DELHI DEVELOPMENT AUTHORITY

PRADHANMANTRI SANGRAHALAYA

NHAI

INTERNATIONAL ARRIVALS

NDMC

HINDUSTAN UNILEVER

CPWD

PWD

LARSEN & TOUBRO

MARATHON ELECTRIC

MITTAL CONS.

GMDA

FUJITA

BROOKFIELD PROPERTIES

DENSO

GLS

CBRE

SMC

SUPREME PIPES

AHRESTY

V3